この物件の特徴
この物件の設備
★ペット可★浴室乾燥★
★☆★建物の特徴★☆★
外壁タイル張りモニター付きオートロック/宅配ボックス/エレベーター/防犯カメラ/ディンプルキー/敷地内ゴミ置き場/24時間ゴミ出し可能/CS/BS/CATV/光ファイバー/風除室/分譲
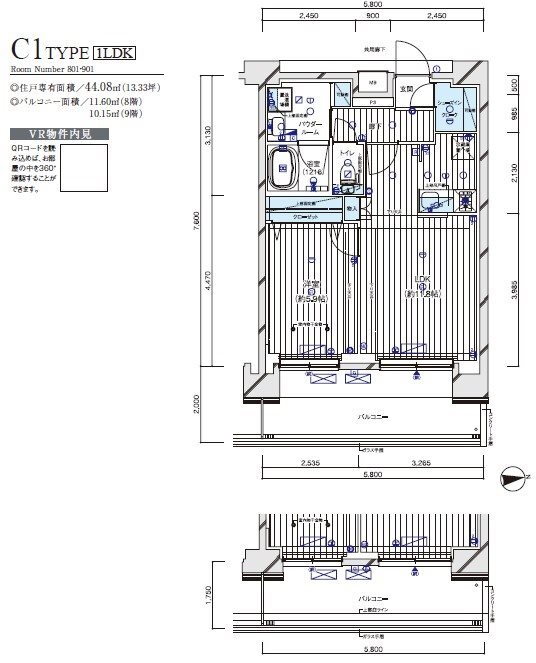
★☆★お部屋の特徴★☆★
システムキッチン/バス・トイレ別/独立洗面台/脱衣所/洗濯機室内/浴室乾燥機/温水洗浄便座/クローゼット/シューズボックス/照明/フローリング/バルコニー/エアコン/モニター付きインターホン/24時間換気システム/ペット可/インターネット無料
(※上記は部屋により異なる場合がございます)
★☆★近くのお店★☆★
セブンイレブン100m/ベルクス120m
★☆★近くの道路★☆★
八広はなみずき通り
メインステージ八広Ⅱは、東京都墨田区八広エリアに位置する、都市の利便性と落ち着いた住環境を兼ね備えたスタイリッシュな賃貸マンションです。京成押上線「八広駅」をはじめ、複数路線が利用可能な立地で、押上・錦糸町・都心方面へのアクセスも良好。通勤や通学はもちろん、休日の外出にも便利なロケーションが魅力です。
建物はモダンな外観デザインが印象的で、オートロックやTVモニター付きインターホンなど、防犯面にも配慮された設計となっています。室内は1K~1LDKを中心としたプランで、システムキッチン、バス・トイレ別、浴室乾燥機、温水洗浄便座など、快適な暮らしを支える設備が充実。宅配ボックスやインターネット利用可といった共用設備も備え、忙しい都市生活をスマートにサポートします。周辺にはスーパーやコンビニ、飲食店も揃い、日常生活の利便性も高く、単身者からカップルまで幅広い層におすすめできるレジデンスです。
周辺地図
物件概要
| 物件種別 | 賃貸マンション |
|---|---|
| 間取り・専有面積 | 1LDK / 44.08m²~ |
| 築年月 | 2025年11月 |
| 規模・構造 | 鉄筋コンクリート造 9階建て |
| 駐車場 | |
| 設備 | オートロック , 光ファイバー対応 , 宅配ボックス , 浴室換気乾燥機 , ウォシュレット , 玄関ダブルロック , ディンプルキー , 独立洗面台 , 脱衣室 , バストイレ別 |
| 特徴 | 敷金・礼金0 , ペット相談可 , 二人入居可 , 分譲賃貸 , 保証人不要 , インターネット無料 , 1DK以上 , レジデンス , 築浅 |
| 取引態様 | 媒介 |
| 自社物件番号 | C-8605 |
- ※当サイトは、建物に関するサイトとなっております。
条件等は、お部屋ごとに異なる場合がございますので、お部屋の事に関しては、必ず募集条件を直接ご確認ください - ※分譲賃貸マンションの場合、お部屋によって家賃・管理費・敷金・礼金など賃貸借契約に関する設定が様々です。各所有者様によって、設備・仕様・内装などが変更されている場合もございます。
- ※ペット飼育やSOHO利用の可否に関しては、建物の管理規約で可能になっていても、お部屋の所有者様によって禁止の場合もございますのでご注意下さい。
- 詳細はお電話、メール、LINEにてスタッフまでご相談下さい。
周辺環境
メインステージ八広Ⅱのお問い合わせ
最新の空室情報・詳細情報などお気軽にお問い合わせください。
- お問い合わせは24時間OK!
- 03-6279-2032
- 営業時間:10:00~20:00




























