この物件の特徴
この物件の設備
★駅近★ペット可★ウォークインクローゼット★
★☆★建物の特徴★☆★
都市ガス/モニター付きオートロック/光ファイバーBS/CS/CATV/宅配ボックス/エレベーター/外観タイル張り/デザイナーズ/防犯カメラ/駐輪場/分譲/敷地内ごみ置き場/ダブルロック/ディンプルキー
★☆★お部屋の特徴★☆★
システムキッチン/3口ガスコンロ/バス・トイレ別/室内洗濯機置場/エアコン/温水洗浄便座/独立洗面台/フローリング/シューズボックス/ウォークインクローゼット/クローゼット/収納/浴室乾燥機/追炊き機能/オートバス/人感センサーライト/ペット飼育可/インターネット無料
(※上記は部屋により異なる場合がございます)
★☆★近くのお店★☆★
ファミリーマート170m/セブンイレブン350m
★☆★近くの道路★☆★
西川口陸橋通り
「エステムコート川口並木サウスガーデン」は、JR京浜東北線「西川口駅」から徒歩2分という利便性の高い立地にある分譲マンションです。
2019年築の比較的新しい建物で、鉄筋コンクリート造15階建、総戸数115戸のしっかりとした規模感があります。
駅周辺にはスーパーやコンビニ、飲食店が揃っており、日常生活に困ることはありません。
都心へのアクセスも良好で、通勤・通学の利便性と住環境のバランスが取れたエリアです。
綺麗さと駅近立地を重視される方におすすめできる物件です。
周辺地図
物件概要
| 物件種別 | |
|---|---|
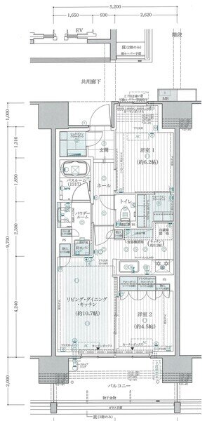
| 間取り・専有面積 | 2LDK / 53.14m²~ |
| 築年月 | 2019年02月 |
| 規模・構造 | 鉄筋コンクリート造 15階建て |
| 駐車場 | |
| 設備 | オートロック , 光ファイバー対応 , 宅配ボックス , 追焚き機能付 , オートバス , 浴室換気乾燥機 , ウォシュレット , 玄関ダブルロック , ディンプルキー , 独立洗面台 , 脱衣室 , バストイレ別 |
| 特徴 | デザイナーズ , ペット相談可 , 二人入居可 , 分譲賃貸 , 保証人不要 , インターネット無料 , 1DK以上 , レジデンス |
| 取引態様 | |
| 自社物件番号 | MA-795 |
- ※当サイトは、建物に関するサイトとなっております。
条件等は、お部屋ごとに異なる場合がございますので、お部屋の事に関しては、必ず募集条件を直接ご確認ください - ※分譲賃貸マンションの場合、お部屋によって家賃・管理費・敷金・礼金など賃貸借契約に関する設定が様々です。各所有者様によって、設備・仕様・内装などが変更されている場合もございます。
- ※ペット飼育やSOHO利用の可否に関しては、建物の管理規約で可能になっていても、お部屋の所有者様によって禁止の場合もございますのでご注意下さい。
- 詳細はお電話、メール、LINEにてスタッフまでご相談下さい。
周辺環境
エステムコート川口並木サウスガーデンのお問い合わせ
最新の空室情報・詳細情報などお気軽にお問い合わせください。
- お問い合わせは24時間OK!
- 03-6279-2032
- 営業時間:10:00~20:00




























