この物件の特徴
この物件の設備
★ペット可★浴室乾燥★
★☆★建物の特徴★☆★
モニター付きオートロック/宅配ボックス/エレベーター/防犯カメラ/ディンプルキー/ゴミ置き場
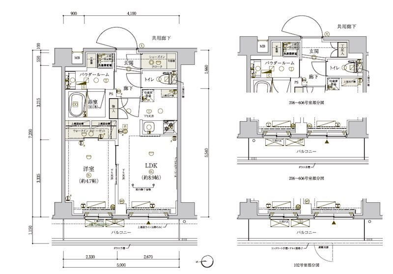
★☆★お部屋の特徴★☆★
システムキッチン/バス・トイレ別/独立洗面台/脱衣所/洗濯機室内/浴室乾燥機/温水洗浄便座/クローゼット/シューズボックス/照明/フローリング/バルコニー/エアコン/モニター付きインターホン/24時間換気システム
(※上記は部屋により異なる場合がございます)
★☆★近くのお店★☆★
セブンイレブン280m/スギ薬局300m
★☆★近くの道路★☆★
西徳通り
東京都板橋区徳丸3丁目に位置する、築浅分譲マンション「メインステージ東武練馬」。東武東上線「東武練馬駅」より徒歩12分の落ち着いた住宅エリアにあり、都心へのアクセスと穏やかな住環境を兼ね備えた住まいです。駅周辺には商業施設や飲食店も充実しており、日常の買い物や外食にも便利な立地となっています。
建物には安心のオートロックシステムを導入し、共用部には24時間荷物の受け取りが可能な宅配ボックスを設置。不在が多い方や帰宅時間が不規則な方でも、快適に生活できる設備が整っています。分譲マンションならではの管理体制とセキュリティ面の充実も、日々の暮らしに安心感を与えてくれます。
室内は、バス・トイレ別の使いやすい間取りをはじめ、浴室乾燥機、独立洗面台、エアコン、温水洗浄便座など、現代のライフスタイルに欠かせない設備をしっかり完備。水回りの動線にも配慮されており、一人暮らしの方はもちろん、忙しい毎日を送る方にも扱いやすい仕様となっています。シンプルで癖のない内装は、インテリアの幅も広がります。
また、ペット飼育が可能なお部屋も多数ご紹介可能。大切なペットと一緒に暮らしたい方にもおすすめです。さらに、キャバクラ勤務・ナイトワーク・夜職の方についても、審査面で柔軟に対応できる体制が整っており、職業面でお部屋探しに不安を感じている方でも安心してご相談いただけます。
「メインステージ東武練馬」は、住みやすさと安心感を重視した分譲マンション。板橋区エリアで、無理のない快適な暮らしを求める方にふさわしい一棟です。
周辺地図
物件概要
| 物件種別 | 賃貸マンション |
|---|---|
| 間取り・専有面積 | 1LDK / 35.91m²~ |
| 築年月 | 2026年02月 |
| 規模・構造 | 鉄筋コンクリート造 6階建て |
| 駐車場 | |
| 設備 | オートロック , 光ファイバー対応 , 宅配ボックス , 浴室換気乾燥機 , ウォシュレット , 玄関ダブルロック , ディンプルキー , 独立洗面台 , 脱衣室 , バストイレ別 |
| 特徴 | ペット相談可 , 二人入居可 , 分譲賃貸 , 保証人不要 , インターネット無料 , 1DK以上 , 築浅 |
| 取引態様 | 媒介 |
| 自社物件番号 | C-8672 |
- ※当サイトは、建物に関するサイトとなっております。
条件等は、お部屋ごとに異なる場合がございますので、お部屋の事に関しては、必ず募集条件を直接ご確認ください - ※分譲賃貸マンションの場合、お部屋によって家賃・管理費・敷金・礼金など賃貸借契約に関する設定が様々です。各所有者様によって、設備・仕様・内装などが変更されている場合もございます。
- ※ペット飼育やSOHO利用の可否に関しては、建物の管理規約で可能になっていても、お部屋の所有者様によって禁止の場合もございますのでご注意下さい。
- 詳細はお電話、メール、LINEにてスタッフまでご相談下さい。
周辺環境
メインステージ東武練馬のお問い合わせ
最新の空室情報・詳細情報などお気軽にお問い合わせください。
- お問い合わせは24時間OK!
- 03-6279-2032
- 営業時間:10:00~20:00






























