この物件の特徴
この物件の設備
★オートロック★独立洗面台★
★☆★建物の特徴★☆★
モニター付きオートロック/宅配ボックス/駐輪場/エレベーター/敷地内ゴミ置場/防犯カメラ/CATV/BS/CS/都市ガス/公共下水/外観タイル張り/光ファイバー/給湯/24時間ゴミ出し可能/デザイナーズ/ディンプルキー/ダブルロック/分譲
★☆★お部屋の特徴★☆★
システムキッチン/バス・トイレ別/浴室換気乾燥暖房機/フローリング/エアコン/室内洗濯機置き場/シューズボックス/IHコンロ/バルコニー/温水洗浄便座/独立洗面台/カラーモニター付きインターホン/ウォークインクローゼット/収納
(※上記は部屋により異なる場合がございます)
★☆★近くのお店★☆★
ローソン58m/ひので薬局80m/MEIDI-YA STORE広尾ストアー187m
★☆★近くの道路★☆★
明治通り
渋谷区広尾5丁目、広尾エリアに建つ高級分譲マンション「ガリシアレジデンス広尾」のご紹介です。
2011年4月築、地上14階建て、総戸数40戸のマンションです。
共用部はオートロック・共用部やエレベーターに設置された複数の防犯カメラ・モニター付きインターホン・24時間対応のセキュリティシステム・防犯性の高いダブルロック玄関など、この土地に相応しいハイグレードな設備とハイセキュリティシステムが安らぎの空間を提供してくれます。
室内には追焚機能、浴室乾燥機、温水洗浄便座など生活に便利な設備が揃っています。
周辺地図
物件概要
| 物件種別 | 賃貸マンション |
|---|---|
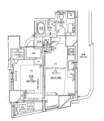
| 間取り・専有面積 | 1LDK / 37.98m²~ |
| 築年月 | 2011年03月 |
| 規模・構造 | 鉄筋コンクリート造 14階建て |
| 駐車場 | |
| 設備 | オートロック , 光ファイバー対応 , 宅配ボックス , 浴室換気乾燥機 , ウォシュレット , 玄関ダブルロック , ディンプルキー , 独立洗面台 , 脱衣室 , バストイレ別 |
| 特徴 | デザイナーズ , ペット相談可 , 二人入居可 , 分譲賃貸 , 保証人不要 , 1DK以上 , レジデンス |
| 取引態様 | 媒介 |
| 自社物件番号 | MA-836 |
- ※当サイトは、建物に関するサイトとなっております。
条件等は、お部屋ごとに異なる場合がございますので、お部屋の事に関しては、必ず募集条件を直接ご確認ください - ※分譲賃貸マンションの場合、お部屋によって家賃・管理費・敷金・礼金など賃貸借契約に関する設定が様々です。各所有者様によって、設備・仕様・内装などが変更されている場合もございます。
- ※ペット飼育やSOHO利用の可否に関しては、建物の管理規約で可能になっていても、お部屋の所有者様によって禁止の場合もございますのでご注意下さい。
- 詳細はお電話、メール、LINEにてスタッフまでご相談下さい。
周辺環境
ガリシアレジデンス広尾のお問い合わせ
最新の空室情報・詳細情報などお気軽にお問い合わせください。
- お問い合わせは24時間OK!
- 03-6279-2032
- 営業時間:10:00~20:00



































