この物件の特徴
この物件の設備
★オートロック★独立洗面台★水商売可★
★☆★建物の特徴★☆★
ペット可/モニター付きオートロック/宅配ボックス/エレベーター/防犯カメラ/ディンプルキー/ゴミ置き場/CS/BS/分譲/インターネット無料
★☆★お部屋の特徴★☆★
システムキッチン/バス・トイレ別/独立洗面台/脱衣所/洗濯機室内/浴室乾燥機/温水洗浄便座/クローゼット/シューズボックス/照明/フローリング/バルコニー/エアコン/モニター付きインターホン/24時間換気システム
(※上記は部屋により異なる場合がございます)
★☆★近くのお店★☆★
セブンイレブン120m/ニコニコレンタカー350m
★☆★近くの道路★☆★
第一京浜
神奈川エリアからはシリーズ系分譲マンション「メインステージ東神奈川」のご紹介です。
京浜東北線「東神奈川駅」から徒歩7分の好立地に位置しております。
建物には安心感のあるオートロックシステムを採用し、防犯面にも配慮。
さらに、不在時でも荷物の受け取りが可能な宅配ボックスを完備しており、
忙しい毎日を送る方にも嬉しい設備が整っています。
室内は、バス・トイレ別をはじめ、浴室乾燥機、独立洗面台、エアコン、温水洗浄便座など、
日々の生活を快適にサポートする設備が充実。
分譲マンションならではのしっかりとした造りと、使い勝手の良い間取りも魅力です。
また、ペット飼育可能なお部屋も多数ご紹介可能となっており、
大切な家族の一員と一緒に新生活をスタートしたい方にもおすすめです。
周辺地図
物件概要
| 物件種別 | 賃貸マンション |
|---|---|
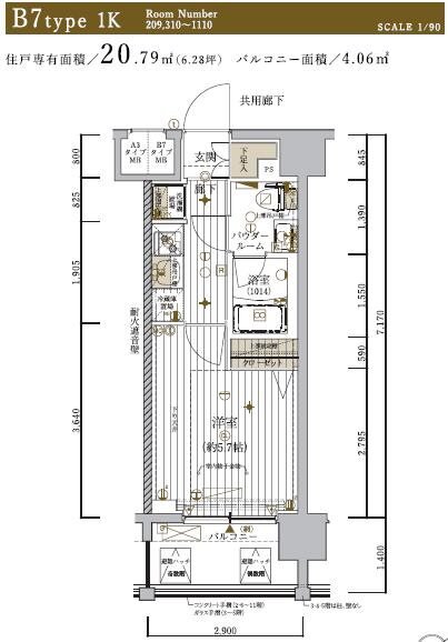
| 間取り・専有面積 | 1K / 20.79m²~ |
| 築年月 | 2019年01月 |
| 規模・構造 | 鉄筋コンクリート造 11階建て |
| 駐車場 | |
| 設備 | オートロック , 光ファイバー対応 , 宅配ボックス , 浴室換気乾燥機 , ウォシュレット , 玄関ダブルロック , ディンプルキー , 独立洗面台 , 脱衣室 , バストイレ別 |
| 特徴 | ペット相談可 , 二人入居可 , 分譲賃貸 , 保証人不要 , インターネット無料 , レジデンス |
| 取引態様 | 媒介 |
| 自社物件番号 | C-8841 |
- ※当サイトは、建物に関するサイトとなっております。
条件等は、お部屋ごとに異なる場合がございますので、お部屋の事に関しては、必ず募集条件を直接ご確認ください - ※分譲賃貸マンションの場合、お部屋によって家賃・管理費・敷金・礼金など賃貸借契約に関する設定が様々です。各所有者様によって、設備・仕様・内装などが変更されている場合もございます。
- ※ペット飼育やSOHO利用の可否に関しては、建物の管理規約で可能になっていても、お部屋の所有者様によって禁止の場合もございますのでご注意下さい。
- 詳細はお電話、メール、LINEにてスタッフまでご相談下さい。
周辺環境
メインステージ東神奈川のお問い合わせ
最新の空室情報・詳細情報などお気軽にお問い合わせください。
- お問い合わせは24時間OK!
- 03-6279-2032
- 営業時間:10:00~20:00


























