この物件の特徴
この物件の設備
★ペット可★浴室乾燥★
★☆★建物の特徴★☆★
モニター付きオートロック/宅配ボックス/エレベーター/防犯カメラ/ディンプルキー/ゴミ置き場
★☆★お部屋の特徴★☆★
システムキッチン/バス・トイレ別/独立洗面台/脱衣所/洗濯機室内/浴室乾燥機/温水洗浄便座/クローゼット/シューズボックス/照明/フローリング/バルコニー/エアコン/モニター付きインターホン/24時間換気システム
(※上記は部屋により異なる場合がございます)
★☆★近くのお店★☆★
セブンイレブン160m/肉のハナマサ750m
★☆★近くの道路★☆★
ジャーマン通り
東京都品川区大井7丁目に位置する「メインステージ大森」は、JR京浜東北線「大森」駅から徒歩10分という利便性の高い立地に佇む築浅分譲マンションです。周辺にはスーパーや飲食店、公園など生活に必要な施設が充実しており、都会の喧騒を感じさせない落ち着いた住環境が広がります。
当マンションは、TVモニター付きオートロックを完備し、セキュリティ面も安心。さらに24時間対応の宅配ボックスが設置されているため、不在時でもスムーズに荷物を受け取ることができます。
室内設備も充実しており、バス・トイレ別、浴室乾燥機、独立洗面台、温水洗浄便座など、快適な暮らしを支える機能が満載。デザイン性と機能性を兼ね備えた住空間で、日々の生活をより豊かに彩ります。
また、ペットと一緒に暮らせるお部屋も多数ご用意しており、大切な家族の一員であるペットと快適に過ごせる環境が整っています。さらに、キャバクラ・ナイトワーク・夜職に従事されている方の審査にも柔軟に対応可能。多様なライフスタイルを受け入れる姿勢で、皆さまに安心してお住まいいただけるようサポートいたします
周辺地図
物件概要
| 物件種別 | 賃貸マンション |
|---|---|
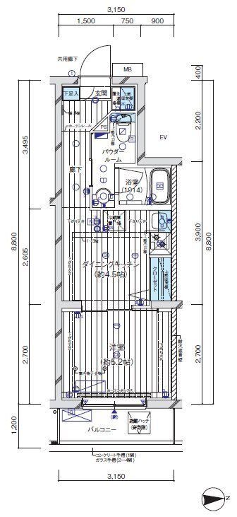
| 間取り・専有面積 | 1DK / 26.04m²~ |
| 築年月 | 2025年01月 |
| 規模・構造 | 鉄筋コンクリート造 4階建て |
| 駐車場 | |
| 設備 | オートロック , 光ファイバー対応 , 宅配ボックス , 浴室換気乾燥機 , ウォシュレット , 玄関ダブルロック , ディンプルキー , 独立洗面台 , 脱衣室 , バストイレ別 |
| 特徴 | 敷金・礼金0 , ペット相談可 , 二人入居可 , 分譲賃貸 , 保証人不要 , インターネット無料 , 1DK以上 , 築浅 |
| 取引態様 | 媒介 |
| 自社物件番号 | C-9104 |
- ※当サイトは、建物に関するサイトとなっております。
条件等は、お部屋ごとに異なる場合がございますので、お部屋の事に関しては、必ず募集条件を直接ご確認ください - ※分譲賃貸マンションの場合、お部屋によって家賃・管理費・敷金・礼金など賃貸借契約に関する設定が様々です。各所有者様によって、設備・仕様・内装などが変更されている場合もございます。
- ※ペット飼育やSOHO利用の可否に関しては、建物の管理規約で可能になっていても、お部屋の所有者様によって禁止の場合もございますのでご注意下さい。
- 詳細はお電話、メール、LINEにてスタッフまでご相談下さい。
周辺環境
メインステージ大森のお問い合わせ
最新の空室情報・詳細情報などお気軽にお問い合わせください。
- お問い合わせは24時間OK!
- 03-6279-2032
- 営業時間:10:00~20:00
































