この物件の特徴
この物件の設備
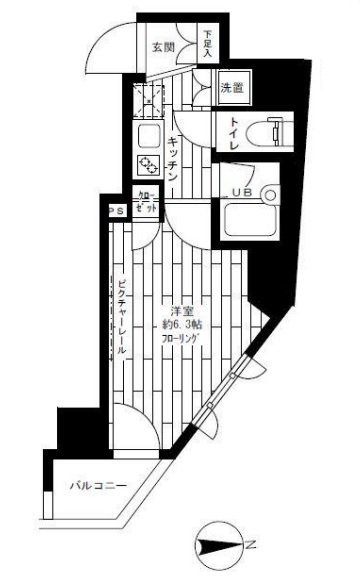
★浴室乾燥機★独立洗面台★
★☆★建物の特徴★☆★
モニター付きオートロック/宅配ボックス/エレベーター/防犯カメラ/ディンプルキー/ゴミ置き場/CS/BS/CATV/24時間ゴミ出し可能
★☆★お部屋の特徴★☆★
システムキッチン/バス・トイレ別/洗濯機室内/浴室乾燥機/温水洗浄便座/クローゼット/シューズボックス/照明/フローリング/バルコニー/エアコン/モニター付きインターホン/24時間換気システム/インターネット無料/角部屋/2面採光
(※上記は部屋により異なる場合がございます)
★☆★近くのお店★☆★
セブンイレブン100m/COCO壱番屋200m
★☆★近くの道路★☆★
青梅街道
都営大江戸線「西新宿五丁目駅」徒歩5分、東京メトロ丸ノ内線「西新宿駅」徒歩8分に建つ分譲マンション「ステージファースト西新宿II」
ビックターミナルの新宿駅までも近郊で都心へのアクセスも良好。
オートロック・防犯カメラ・TVモニター付きインターホンなどの防犯設備が充実しており、安心して過ごせます。
ガスシステムキッチン・独立洗面台・浴室乾燥機・洗浄便座・エアコン・宅配ボックスといった設備に加え、インターネット無料使い放題サービスも導入されており、シングルユーザーのニーズに細かく応えた物件です。
周辺地図
物件概要
| 物件種別 | 賃貸マンション |
|---|---|
| 間取り・専有面積 | 1K / 20.33m²~ |
| 築年月 | 2006年03月 |
| 規模・構造 | 鉄筋コンクリート造 14階建て |
| 駐車場 | |
| 設備 | オートロック , 光ファイバー対応 , 宅配ボックス , 浴室換気乾燥機 , ウォシュレット , 玄関ダブルロック , ディンプルキー , 独立洗面台 , 脱衣室 , バストイレ別 |
| 特徴 | 敷金・礼金0 , 分譲賃貸 , 保証人不要 , インターネット無料 , レジデンス |
| 取引態様 | 媒介 |
| 自社物件番号 | MC-1578 |
- ※当サイトは、建物に関するサイトとなっております。
条件等は、お部屋ごとに異なる場合がございますので、お部屋の事に関しては、必ず募集条件を直接ご確認ください - ※分譲賃貸マンションの場合、お部屋によって家賃・管理費・敷金・礼金など賃貸借契約に関する設定が様々です。各所有者様によって、設備・仕様・内装などが変更されている場合もございます。
- ※ペット飼育やSOHO利用の可否に関しては、建物の管理規約で可能になっていても、お部屋の所有者様によって禁止の場合もございますのでご注意下さい。
- 詳細はお電話、メール、LINEにてスタッフまでご相談下さい。
周辺環境
ステージファースト西新宿のお問い合わせ
最新の空室情報・詳細情報などお気軽にお問い合わせください。
- お問い合わせは24時間OK!
- 03-6279-2032
- 営業時間:10:00~20:00































