この物件の特徴
この物件の設備
★保証人不要★築浅★水商売相談可★
★☆★建物の特徴★☆★
外壁タイル張り/モニター付きオートロック/宅配ボックス/駐輪場バイク置き場/エレベーター/敷地内ゴミ置場/防犯カメラ/BS/CS/都市ガス/光ファイバー/給湯/24時間ゴミ出し可能/築浅/分譲/メールボックス/管理室/ディンプルキー/ダブルロック
★☆★お部屋の特徴★☆★
システムキッチン/バス・トイレ別/浴室換気乾燥暖房機/フローリング/エアコン/室内洗濯機置き場/シューズボックス/2口コンロ/バルコニー/温水洗浄便座/独立洗面台/人感センサーライト/インターネット無料/クローゼット/カラーモニター付きインターホン/クローゼット/ペット可/2人入居可
(※上記は部屋により異なる場合がございます)
★☆★近くのお店★☆★
ファミリーマート400m/セブンイレブン450m
★☆★近くの河川★☆★
神田川
歓楽街歌舞伎町徒歩圏内のペット可高級分譲マンション。
オートロック完備でセキュリティもばっちりで、バルコニー、浴室乾燥機乾燥機、室内洗濯機置き場、宅配ボックス完備!
春には満開の桜が咲き誇る神田川を一望できるマンションとなっております。
ペット可・独立洗面台・インターネット無料と充実な設備となっております。
敷金・礼金なしなしの初期安プラン有となっております。
キャバクラ・ナイトワーク・夜職の審査も柔軟に対応可能。
周辺地図
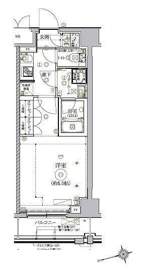
物件概要
| 物件種別 | 賃貸マンション |
|---|---|
| 間取り・専有面積 | 1K / 25.55m²~ |
| 築年月 | 2020年11月 |
| 規模・構造 | 鉄筋コンクリート造 5階建て |
| 駐車場 | |
| 設備 | オートロック , 光ファイバー対応 , 宅配ボックス , 浴室換気乾燥機 , ウォシュレット , 玄関ダブルロック , ディンプルキー , 独立洗面台 , 脱衣室 , バストイレ別 |
| 特徴 | ペット相談可 , 二人入居可 , 分譲賃貸 , 保証人不要 , インターネット無料 , ホワイトフローリング , レジデンス |
| 取引態様 | 媒介 |
| 自社物件番号 | MC-2405 |
- ※当サイトは、建物に関するサイトとなっております。
条件等は、お部屋ごとに異なる場合がございますので、お部屋の事に関しては、必ず募集条件を直接ご確認ください - ※分譲賃貸マンションの場合、お部屋によって家賃・管理費・敷金・礼金など賃貸借契約に関する設定が様々です。各所有者様によって、設備・仕様・内装などが変更されている場合もございます。
- ※ペット飼育やSOHO利用の可否に関しては、建物の管理規約で可能になっていても、お部屋の所有者様によって禁止の場合もございますのでご注意下さい。
- 詳細はお電話、メール、LINEにてスタッフまでご相談下さい。
周辺環境
リルシア北新宿のお問い合わせ
最新の空室情報・詳細情報などお気軽にお問い合わせください。
- お問い合わせは24時間OK!
- 03-6279-2032
- 営業時間:10:00~20:00































