この物件の特徴
この物件の設備
★オートロック★独立洗面台★
★☆★建物の特徴★☆★
オートロック/公共下水/給湯/木造/分譲/BS/CS
★☆★お部屋の特徴★☆★
システムキッチン/IHコンロ/バス・トイレ別/フローリング/エアコン/室内洗濯機置き場/温水洗浄便座/独立洗面台/脱衣室/クローゼット
(※上記は部屋により異なる場合がございます)
★☆★近くのお店★☆★
ファミリーマート230m/セブンイレブン350m
★☆★近くの道路★☆★
大久保通り
中野区東中野1丁目エリアに建つ賃貸アパート「アトレ東中野Ⅱ」のご紹介です。
2016年4月築、地上3階建ての木造アパートです。
オートロックがあるので防犯面も安心です。
住戸には独立洗面台や収納、エアコン、システムキッチン、温水洗浄便座など生活に便利な設備が完備されています。
都営大江戸線「東中野」駅から徒歩7分で複数路線が利用できるのでアクセスも良好です。
周辺地図
物件概要
| 物件種別 | 賃貸アパート |
|---|---|
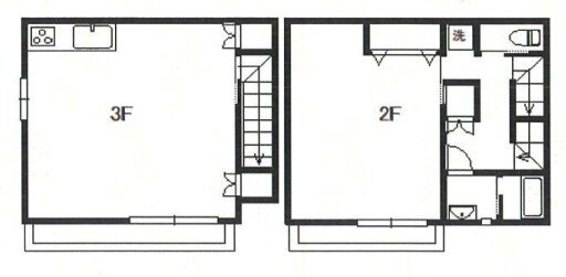
| 間取り・専有面積 | 1LK / 45.58m²~ |
| 築年月 | 2016年04月 |
| 規模・構造 | 木造 3階建て |
| 駐車場 | |
| 設備 | オートロック , ウォシュレット , バストイレ別 |
| 特徴 | 敷金・礼金0 , 保証人不要 |
| 取引態様 | 媒介 |
| 自社物件番号 | MC-2578 |
- ※当サイトは、建物に関するサイトとなっております。
条件等は、お部屋ごとに異なる場合がございますので、お部屋の事に関しては、必ず募集条件を直接ご確認ください - ※分譲賃貸マンションの場合、お部屋によって家賃・管理費・敷金・礼金など賃貸借契約に関する設定が様々です。各所有者様によって、設備・仕様・内装などが変更されている場合もございます。
- ※ペット飼育やSOHO利用の可否に関しては、建物の管理規約で可能になっていても、お部屋の所有者様によって禁止の場合もございますのでご注意下さい。
- 詳細はお電話、メール、LINEにてスタッフまでご相談下さい。
周辺環境
アトレ東中野Ⅱのお問い合わせ
最新の空室情報・詳細情報などお気軽にお問い合わせください。
- お問い合わせは24時間OK!
- 03-6279-2032
- 営業時間:10:00~20:00




















